Office and Coworking spaces in Aundh

Westend Icon is a Grade A+ office development in Aundh, Pune, conceived as a contemporary business address within a fully integrated urban destination. Anchored by the operational Westend Mall, the development brings together work, retail, and leisure in a single, cohesive environment.

Developed by Suma Shilp Limited in collaboration with Blackstone Group, Westend Icon is shaped by institutional thinking—prioritising efficiency, longevity, and asset performance over short-term appeal. Large, highly efficient floor plates, advanced building infrastructure, and sustainability-led design ensure a workplace that supports scale, adaptability, and long-term operational stability.

Defined by clarity in planning and restraint in expression, Westend Icon is positioned for enterprises seeking more than office space—offering a credible, future-ready platform for sustained business growth in one of Pune’s most established commercial districts.

Unit Type:

Office and Coworking spaces

Available Area:

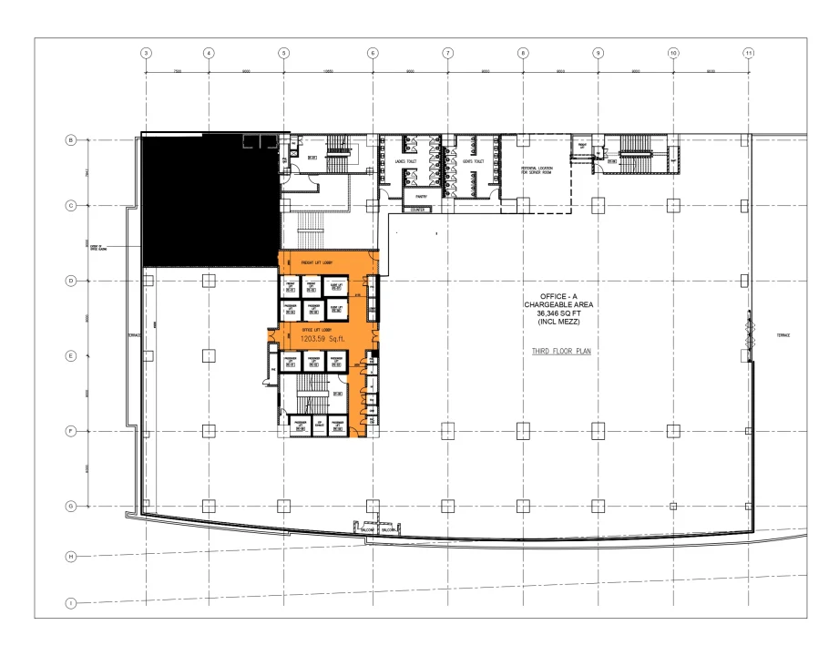
60000 sq.ft.[3rd Floor]

Location:

Parihar Chowk, Aundh

RERA No.:

OC Received

Status:

Bare Shell

Key Highlights

1. Prime Aundh Location

Strategically positioned with excellent connectivity to major arterial roads, highways, and Pune Airport, supported by a dense residential and commercial ecosystem.

2. Institutional-Grade Development

Jointly developed by Blackstone Group and Suma Shilp Limited, ensuring global standards of planning, execution, and long-term ownership stability.

3. Large & Efficient Office Floor Plates

Average floor plates of approximately 30,000 sq. ft. with ~73% efficiency, enabling flexible and scalable office configurations.

westend sketch image
4. Integrated Mixed-Use Environment

Direct adjacency to Westend Mall, offering retail, F&B, entertainment, and terrace gardens—enhancing employee experience and daily convenience.

5. Sustainability-Led Design

Targeted IGBC Platinum Certification, with energy-efficient façade systems, water conservation measures, and responsible waste management practices.

6. Future-Ready Infrastructure

100% power backup, high-speed elevators with destination control, advanced fire safety systems, integrated building management, and ample structured parking.

Floor Plans

3rd Floor

Walkthrough Videos

Location - Connectivity

  • Close to Highways and link roads
  • Easy connectivity to all parts of the city
  • Excellent F&B, shopping and retails options
  • Dense residential catchment
  • Vidyapeeth Road - 0.9 Kms
  • Baner Road - 1.2 Kms
  • Shivaji Nagar - 5.6
  • Khadki Metro Station - 5.7 Kms
  • Dapodi Metro Station - 5.4 Kms
  • NH48 - 6.2 Kms
  • NH60 - 6.4 Kms
  • Pune Junction - 9.8 Kms
  • International Airport - 14.8 Kms

Get in Touch

There was a problem validating the form please check!
The connection to the server timed out!
Successfully sent!!